Page 7 - 数控外圆磨床综合样本
P. 7

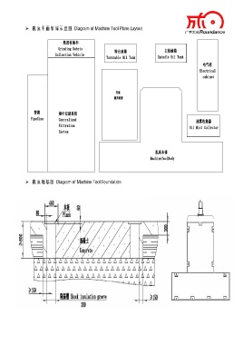
¾  机床平面布局示意图  Diagram of Machine Tool Plane Layout











































             ¾  机床地基图  Diagram of Machine Tool Foundation
   2   3   4   5   6   7   8